A site near Crozet that housed numerous restaurants over the years but has sat vacant for nearly two decades soon will be home to a new eatery. “This may be the most difficult site in all of Albemarle County,” said Melton McGuire, co-owner of Mechum’s Trestle, which is at the intersection of Route 240 and […]
Author Archives: Tim Dodson
Albemarle weighs ban on new rural golf courses, athletic facilities
Albemarle County is considering a change to its zoning ordinance that would eliminate swim and tennis clubs, golf courses and similar recreational facilities as acceptable land uses for a special-use permit in the county’s rural areas. “This is sort of a carryover debate from what we had during the Comprehensive Plan review several years ago,” […]
Dominion required to limit visibility of power line in Albemarle
After several local residents raised concerns about the visual impact of an anticipated power line project in Albemarle County, the State Corporation Commission is requiring Dominion Energy to darken the transmission line towers. The 32.7-mile Cunningham-Dooms transmission line runs between substations in Augusta and Fluvanna counties, but the bulk of the line is in Albemarle. […]
Bond financing proposed for Crozet Plaza, road to Parkside Village
As plans for downtown Crozet continue to come together, a developer is proposing Albemarle County use bonds to finance $4.72 million worth of infrastructure projects to support the area’s redevelopment. Frank Stoner, of Milestone Partners and Crozet New Town Associates, has been working to redevelop the 20-acre property formerly home to the J. Bruce Barnes […]
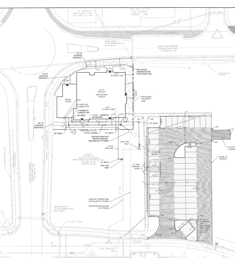
Commercial space for Old Trail continues to develop
Two new mixed-use buildings are in the works for Old Trail Village in Crozet, although plans for a larger building appear to have been delayed. Albemarle County staff offered feedback on plans for a nearly 28,000 square-foot building at a site plan review meeting on Thursday. The four-story building would be located to the southwest […]
UVa aims to expand squash facility, host world championships
The University of Virginia Foundation is planning to expand the squash facility at the Boar’s Head Sports Club in anticipation of the World Masters Squash Championships next year. Plans for a 20,000-square-foot addition to the McArthur Squash Center were part of a multi-year major capital plan approved at a joint meeting earlier this month of […]
Albemarle to allow solar farms in rural areas
Albemarle County will allow solar farms in designated rural areas after the Board of Supervisors approved a zoning text amendment Wednesday. Albemarle’s zoning ordinance did not previously allow energy generation in the rural areas, which encompasses 95 percent of county land. “You are considering a zoning text amendment to allow utility-scale photovoltaic solar energy facilities […]
Albemarle development areas to receive equal neighborhood improvements funding
The Albemarle County Board of Supervisors provided further direction for the allocation of funds to support small-scale projects in neighborhoods throughout the county at its meeting Wednesday night. The Neighborhood Improvements Funding Initiative is a one-time distribution of $1.4 million between the county’s development areas that is supported with funds from the county’s nearly $8.1 […]
Old Trail petitions for Western Park master plan revision
Several Old Trail residents in western Albemarle County are petitioning for a park that has been envisioned by the Crozet community, but seen little progress in recent years. The 36-acre site, known as Western Park, is located along Lickinghole Creek in Old Trail. “The ultimate buildout of the park would benefit the whole community,” Jim […]
Workshop considers ways to improve accessibility to businesses, travel experiences for individuals with disabilities
A Charlottesville-based nonprofit is working to create conversations about accessibility and travel. The Blue Trunk Foundation recently held a workshop with the University of Virginia School of Architecture to reflect on what individuals with disabilities and their caregivers expect when they are traveling and what businesses can do to be more accessible. Attendees also provided […]





